 
							
					
															Le rêve qui devient accessible !
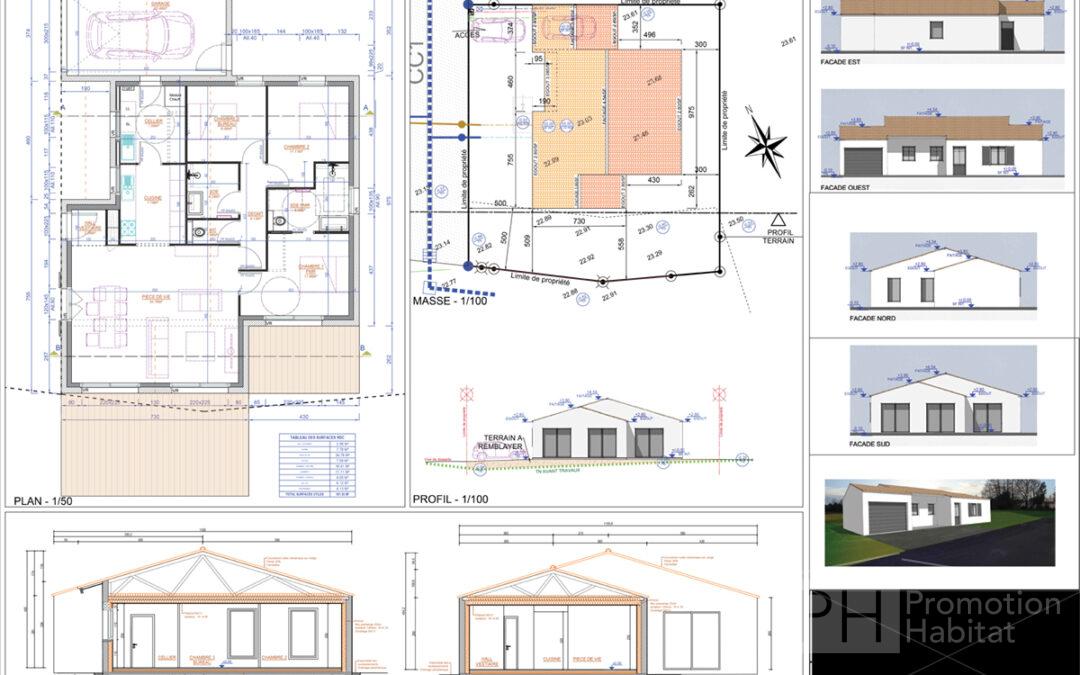
Sur la commune de Challans, dans un quartier résidentiel à 2 mn de toutes commodités nous vous proposons une maison neuve de plein pied avec une conception du type traditionnelle d’une surface habitable de 118 m2 avec 3 chambres, équipée de 2 salles d’eau. L’emprise au sol est de 168 m2 en incluant le garage.
Cette maison répond aux normes RE 2020 et PMR. De plain-pied, elle se compose de trois chambres. Ouvertures en aluminium haut de gamme, volets roulants électriques sur toutes ouvertures. Deux salles d’eau équipées d’un receveur extra-plat, deux WC suspendus séparés, une belle pièce de vie d’environ 42 m². Système de chauffage au sol plus écologique par PAC DUO très efficace, sans entretien et économe. Belle exposition SUD donnant sur une terrasse en bois , le tout sur un terrain clôturé et aménagé de 414 m2. Cellier et garage attenant avec portail électrique. Livraison prévue décembre 2022.
N’hésiter pas à nous contacter pour plus d’informations.
 
				 
					
				 
					
				 
					
				 
					
				 
					
				 
					
				 
					
				 
					
				 
					
				 
					
				 
					
				 
							
 
					
				 
					
				 
					
				 
					
				 
					
				 
					
				 
					
				 
					
				 
					
				 
					
				 
					
				 
					
				 
					
				 
					
				 
					
				 
					
				 
					
				 
					
				 
					
				 
					
				 
					
				 
					
				 
					
				 
					
				 
					
				 
					
				 
					
				 
					
				 
					
				 
					
				 
					
				 
					
				 
					
				 
					
				 
					
				 
					
				 
					
				 
					
				